THE MONTANA CLINIC
A project based in northwest Montana designing a rural hospital. This is a community-focused health clinic that emphasizes patient education and support. Going beyond treatment and prioritizing illness prevention is a key aspect of this space.
This is a group project done by Caitlyn Bliss, Claudia Donnachie, Gwen Castor, and Madison Hogan.
Check-In featuring educational tablets informing patients of common health issues and how to prevent them (By Gwen Castor and Caitlyn Bliss)
Waiting Room with doors leading to the children's play area and sensory room pictured on the right (By Gwen Castor and Caitlyn Bliss)
Sensory Room with acoustic wall panels and ambient lighting (By Gwen Castor)
Check-Out featuring a vitals room on the right and a desk with ADA accessibility (By Claudia Donnachie)
Exam Room including a consultation table, casework, and views of the Montana mountains (By Caitlyn Bliss)
ADA Accessible Bathroom (By Gwen Castor)
Wayfinding- featuring the practitioner's workroom and arched hallways (By Caitlyn Bliss and Claudia Donnachie)
Staff Room with various seating options, lockers, and a small kitchen (By Claudia Donnachie)
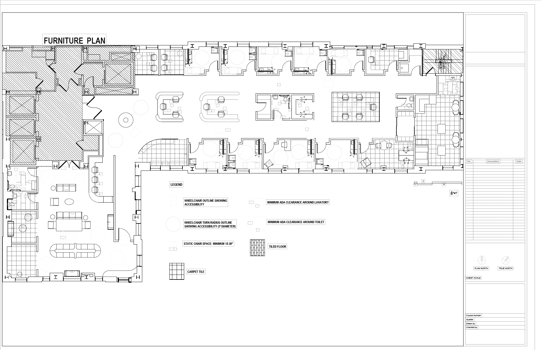
Furniture Floor Plan with material and space legend (By Caitlyn Bliss, Claudia Donnachie, Gwen Castor, and Madison Hogan)
Reflected Ceiling Plan with material legend (By Caitlyn Bliss)
Enlarged Floor Plan of the exam room with dimensions and annotations (By Caitlyn Bliss)
Elevation of the exam room with dimensions and annotations (By Caitlyn Bliss)
Check-In Elevation (By Gwen Castor)
Mood Board showing inspiration for the final design (By Caitlyn Bliss)
Concept Statement inspiring the final design (By Caitlyn Bliss)
AutoCAD Floor Plan (By Caitlyn Bliss, Claudia Donnachie, Gwen Castor, and Madison Hogan)
AutoCAD Reflected Ceiling Plan (By Caitlyn Bliss)